ЦЕНА СНИЖЕНА ТОЛЬКО ДО КОНЦА ДЕКАБРЯ!
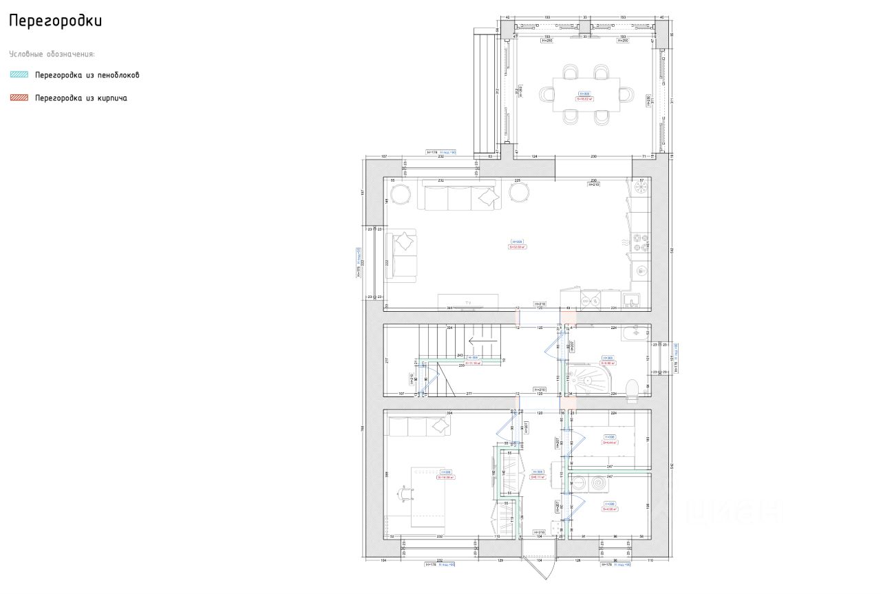
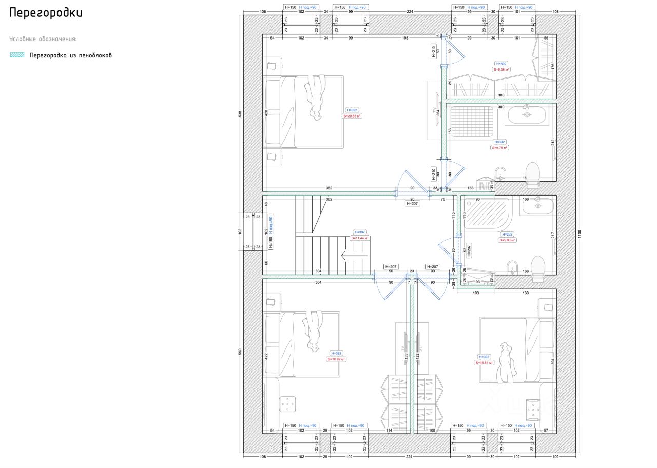
Продается двухэтажный кирпичный дом с закрытом КП Пушкинский лес, в 33 км от МКАД по Ярославскому шоссе.
Подходит под семейную ипотеку и под ипотеку с гос.потдержкой.
Толщина стены дома 52 см: 38 см рабочий пустотелый кирпич + 5 см утеплитель + облицовочный кирпич.
Фундамент: свайно-ростверный на ЖБИ сваях 20х20.
В дом заведены все центральные коммуникации: газ, свет, вода, канализация.
По периметру участка установлен забор.





















