Если цена в объявлении изменится, мы сразу сообщим вам об этом на электронную почту.
Нажимая «Подписаться», вы соглашаетесь с правилами.
продам 1-к, Бутово Парк, 88 500 000 ₽
27 апр
Дата публикации объявления
Обн. 26 мая
Дата обновления объявления
1
Количество просмотров (+ просмотры за сегодня)
203 349 ₽/м²
Чистая продажа
Термин "Чистая продажа" означает, что в квартире никто не прописан или
есть куда выписаться и вывезти вещи. Это лучший вариант для покупателя.
Вероятность срыва сделки минимальна.
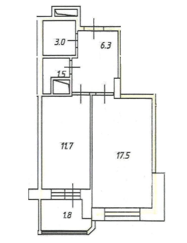
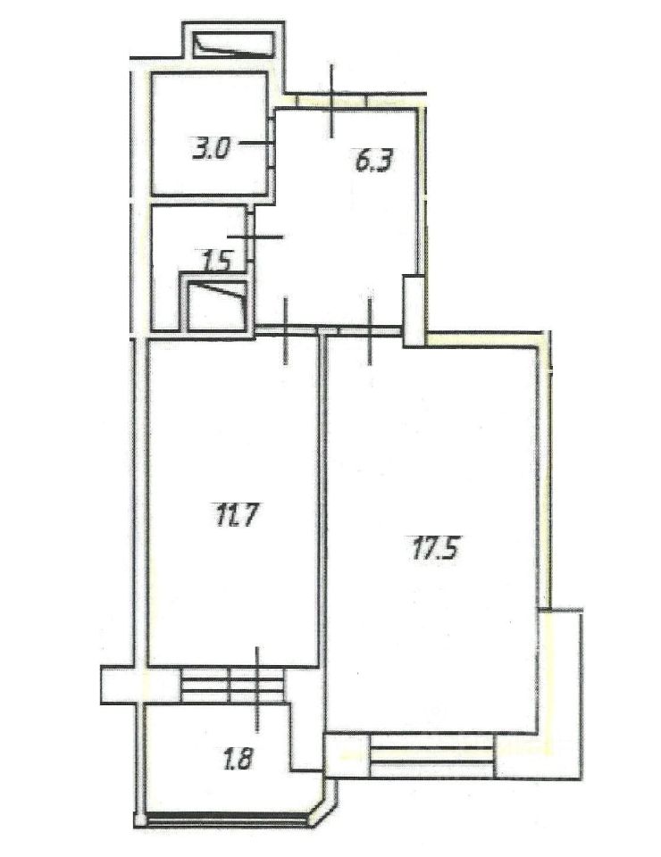
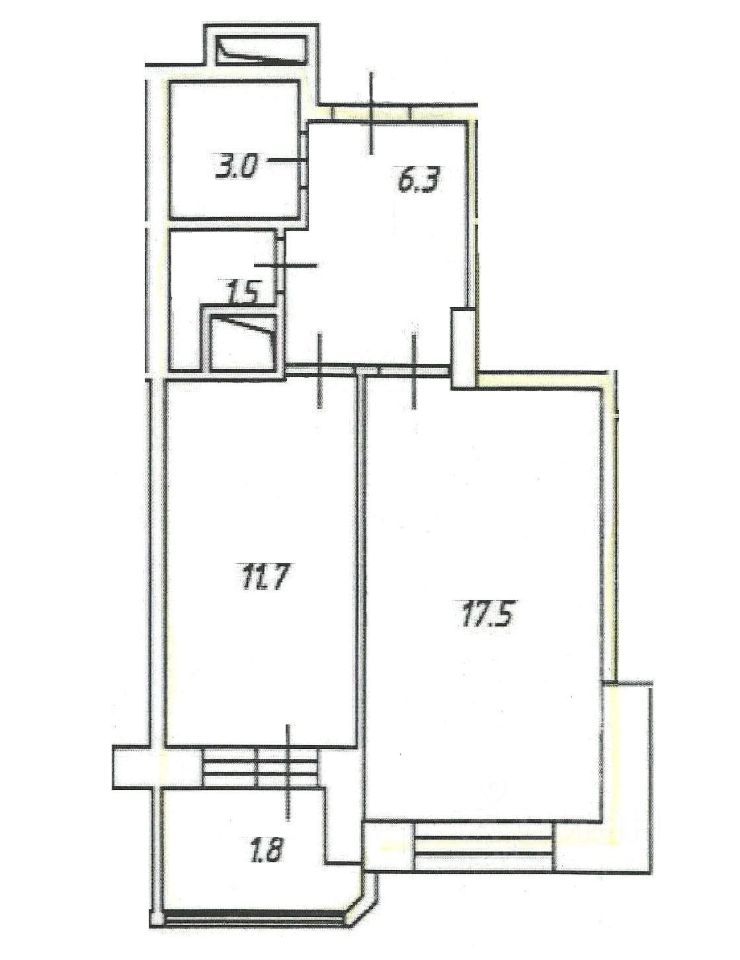
Продается просторная однокомнатная квартира в современном жилом комплексе Бутово Парк. Общая площадь составляет 41.8 кв.м, жилая площадь — 17.5 кв.м, а кухня — 11.7 кв.м. Квартира расположена на 20 этаже из 24, что открывает прекрасные виды на улицу и обеспечивает тишину и уединение. Высота потолков — 2.75 метра, что добавляет ощущение простора.
В квартире выполнен качественный евроремонт, поэтому вам не придется беспокоиться о дополнительных вложениях. Просторная кухня оснащена современной техникой, что делает приготовление пищи удобным и приятным. В квартире есть один санузел и балкон, где можно наслаждаться утренним кофе. Планировка позволяет организовать пространство по своему вкусу и создать уютный интерьер.
Продается просторная однокомнатная квартира в современном жилом комплексе Бутово Парк. Общая площадь составляет 41.8 кв.м, жилая площадь — 17.5 кв.м, а кухня — 11.7 кв.м. Квартира расположена на 20 этаже из 24, что открывает прекрасные виды на улицу и обеспечивает тишину и уединение. Высота потолков — 2.75 метра, что добавляет ощущение простора.
В квартире выполнен качественный евроремонт, поэтому вам не придется беспокоиться о дополнительных вложениях. Просторная кухня оснащена современной техникой, что делает приготовление пищи удобным и приятным. В квартире есть один санузел и балкон, где можно наслаждаться утренним кофе. Планировка позволяет организовать пространство по своему вкусу и создать уютный интерьер.
Дом оборудован двумя пассажирскими и двумя грузовыми лифтами, поэтому ждать лифт не придется. Также имеется мусоропровод, что делает утилизацию отходов удобной. Наземная парковка обеспечит место для вашего автомобиля. Комплекс ухожен и находится в отличном состоянии.
В шаговой доступности расположены школы и детские сады, поэтому детям не придется тратить много времени на дорогу. Рядом находятся магазины, где можно купить все необходимое. До станции метро ''Бутово'' всего 12 минут пешком, поэтому добраться до центра города не составит труда.
Свободная продажа, без обременений, никто не зарегистрирован. Квартира подходит для ипотеки, что делает покупку более доступной. Все документы в порядке, поэтому оформление пройдет быстро и без проблем.