1-к, Пятиречье, 3 Показать на карте
Целеево
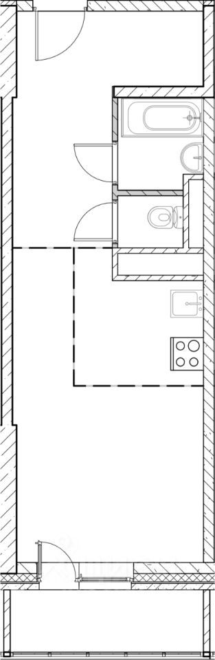
Сдается в аренду студия в новом доме 2023 года постройки с черновой отделкой,проведена электрика, есть розеткиесть унитаз . Лоджия оборудована заменяющими жалюзи.возможно предоставление хорошего холодильника,электроплиты,стиральной машины.возмодно подключение интернета Дом оснащен как пассажирским, так и грузовым лифтами, поэтому можно легко добраться до квартиры даже с тяжелыми вещами. Для владельцев автомобилей предусмотрена наземная парковка. Новостройка в отличном состоянии, ведь дом только что сдан в эксплуатацию.Рядом с домом находятся магазины, где можно купить все необходимые продукты и товары для дома. Удобное расположение позволяет быстро добраться до основных инфраструктурных объектов.Условия аренды: договор заключается напрямую с собственником, что исключает дополнительные комиссии. Оплата производится ежемесячно,без залога.Квартира площадью 34 кв. м расположена на 5 этаже 12-этажного здания,связь по телефонуПредоплата за 1 месяцЗалог 1 000 ₽
34 м2
5 / 12 этаж
- Показать контакты
- Добавить в избранное
34 м2
5 / 12 этаж
9 000 /мес.
